日期: 2019-08-01 14:03:17
1、产品简介:酸雾净化塔,祛除废气中有害气体的一种废气净化设备,是废气处理工程中常用的净化设备。
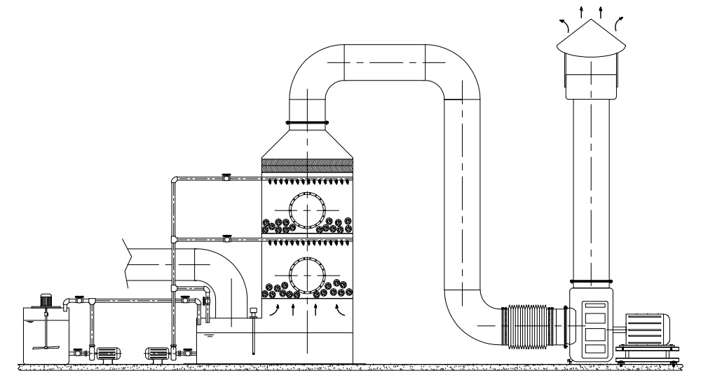
2、工作流程:
在硫酸、硝酸、氢氟酸、盐酸等工艺操作过程中产生性气体,废气通过引风机的动力进入高效填料塔,当有一定进气速度的酸性气体经进气管进入酸雾处理塔后,设备的冲击水层改变了气体的运动方向,而气体由于惯性则继续按原方向运动,其中大部分尘粒与水粘附后便停留在水中,在冲击水浴后,有一部分尘粒随气体运动,与冲击水雾并与循环喷淋水相结合,在主体内进一步充分混合,起到中和作用。填料塔对酸、碱性废气净化采用多级旋转式喷淋、吸收,吸收液均匀分布在填料上,酸性废气净化塔同时对填料层及塔体进行了技术参数上的优化,将气相上行,雾状喷淋液下行,经填料多边流动,气液充分交织,酸雾与碱性液中和,有理想的吸收净化效果,废气与吸收液在填料表面上充分接触,采用的填料有机械强度大、耐腐蚀、空隙率高、表面大的特点,废气与吸收液在填料表面有较多的接触面积和反应时间,废气中的易溶于水的物质被吸附在吸收液上,废气中HCl、Cl2、NOX和NH3等物质与吸收液反应,此时含尘气体中的尘粒便被水捕集,尘粒因重力经塔壁流入循环池,含酸、碱废气经过有效过滤脱离,净化后的气体会饱含水份,经过塔顶的除雾装置去除水份,净化后气体直接排放大气中。废水在循环池中经加药处理后可循环使用;沉渣定期清捞、外运。
3、特点:
龙康酸雾处理塔的工艺与产品综合国内外同类净化塔的优点,结构简单、能耗低、净化效率高和适用范围广的特点,能有效去除氯化氢气体(HCl)、氟化氢气体(HF)、氨气(NH3)、硫酸雾(H2SO4)、铬酸雾(CrO3)、氰氢酸气体(HCN)、碱蒸气(NaOH)、硫化氢气体(H2S)、福尔马林(HCHO)等水溶性酸、碱气体。酸雾处理塔是用户首选的废气处理净化设备。